Imperial i+
- Kiválóan hőszigetelő ablakok, ajtók és portálok gyártására kifejlesztett rendszer
- A fokozott hőszigetelést a hőszigetelő stégek közé, valamint az üveg köré behúzott kiegészítő betétek alkalmazása teszi lehetővé. Rendelhető változatok: IP i, IP i+
- A rendszer által kínált profilok széles választéka a lehetővé teszi az igényelt esztétika és a megfelelően strapabíró szerkezet elérését
- Lehetőség van az ablakok függönyfalas rendszerekbe való beszerelésére
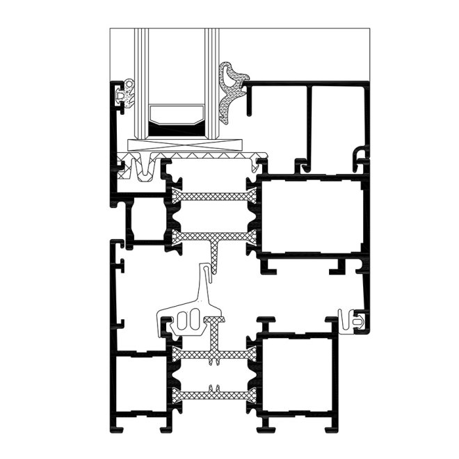
- Az üvegező lécek a következő változatokban érhetők el: négyszögletes és lekerekített
- A profilok alakja lehetővé teszi a különböző vasalat típusok használatát, beleértve a rejtett zsanérokat és a pvc vasalatokat
- A széles üvegezési kínálat lehetővé teszi az összes, egy- illetve kétkamrás, akusztikus illetve betörésgátló üvegek használatát
- A profilok víztelenítése a következő változatokban rendelhető: hagyományos illetve rejtett
- Lehetőség van a Flyscreen rendszer felszerelésére (Flyscreen – rovarháló rendszer rovarok ellen)
- Lehetőség van a profilok hajlítására (a profilok részletes specifikációja és a hajlítás műszaki paraméterei – a www.aliplast.hu honlap ügyfélzónájában érhetők el)
- Lakóépületek, közhasznú épületek tervezéséhez ajánlott rendszer, az Imperial i+ lehetővé teszi a modern ablakszerkezeti konstrukciók több variánsú tervezését
- Széles színválaszték – RAL színskála (Qualicoat 1518), struktúrált színek, Aliplast Wood Color Effect – fautánzatú színek, Aliplast Loft View – kőutánzatú színek (Qualideco PL-0001), eloxálás (Qualanod 1808), külső-belső két-szín

TERMÉKLEÍRÁS
| RENDSZER | ANYAG | TOK VASTAGSÁG | SZÁRNY VASTAGSÁG | ÜVEGEZÉS VASTAGSÁGA | Hangszigetelés | ABLAKTÍPUS |
| IP i | alumínium/poliamid | 65 mm | 74 mm | 4-51 mm | 43 (-2,-4) dB | egyszárnyú, kétszárnyú, kifelé nyíló, befelé nyíló |
| IP i + | alumínium/poliamid | 65 mm | 74 mm | 4-51 mm | 43 (-2,-4) dB | egyszárnyú, kétszárnyú, kifelé nyíló, befelé nyíló |
MŰSZAKI ADATOK
| RENDSZER | HŐÁTBOCSÁTÁSI TÉNYEZŐ Uf* | LÉGZÁRÁS | SZÉLÁLLÓSÁG | VÍZZÁRÁS |
| IP i | Uf ≥ 1,57 W/m2K-től | 4. osztály, EN 12207 szabvány | C4 osztály, EN 12210 szabvány | E1350 osztály, EN 12208 szabvány |
| IP i + | Uf ≥ 1,28 W/m2K-tól | 4. osztály, EN 12207 szabvány | C4 osztály, EN 12210 szabvány | E1350 osztály, EN 12208 szabvány |
*A hőátbocsátási tényező a profilösszetételtől és a kitöltés vastagságától függ