Aliplast – Ecoslide
Ecoslide
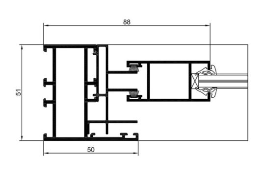
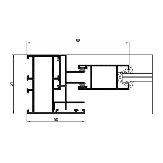
- Tolóajtók kivitelezéséhez kialakított hőhidas rendszer.
- A rendszert fűtetlen külterekhez (erkélyek, teraszok, loggiák) illetve épületbelsőkben található tolószerkezetekhez tervezték.
- Ez egy két-, három- illetve négypályás rendszer, mely lehetővé teszi a 2-, 3-, 4-, 6- és 8-szárnyas szerkezetek kialakítását.
- A tolószárnyak kocsiai a szárnyak alsó részén találhatók.
- Az Ecoslide Rendszer kompatibilis az Aliplast többi rendszerével.
- Széles színválaszték – RAL színskála (Qualicoat 1518), struktúrált színek, Aliplast Wood Color Effect – fautánzatú színek, Aliplast Loft View – kőutánzatú színek (Qualideco PL-0001), eloxálás (Qualanod 1808), külső-belső két-szín

Kapcsolódó galériák
Megvalósítás
Metszetek
információ és
ajánlatkérés